Role: Senior Architectural Lighting Designer at Ambience Lighting
Location: Sylvia Park, Auckland
Brief: Design a comprehensive lighting solution for MECCA's largest retail location spanning two levels. Balance luxury brand aesthetics with functional requirements for accurate cosmetic product testing on the ground floor whilst complying with New Zealand's strict energy efficiency regulations. Create distinct lighting experiences appropriate for cosmetics, skin care and fragrance.
Key Responsibilities:
- Developed dual-level lighting strategy in collaboration with MECCA's interior architectural team.
- Designed ground floor stretch-fabric ceiling panel system covering 85% of ceiling area to create shadowless daylight effect essential for accurate product testing.
- Engineered precise light distribution using DiaLux modelling, ensuring uniform illumination whilst meeting strict NZ wattage requirements.
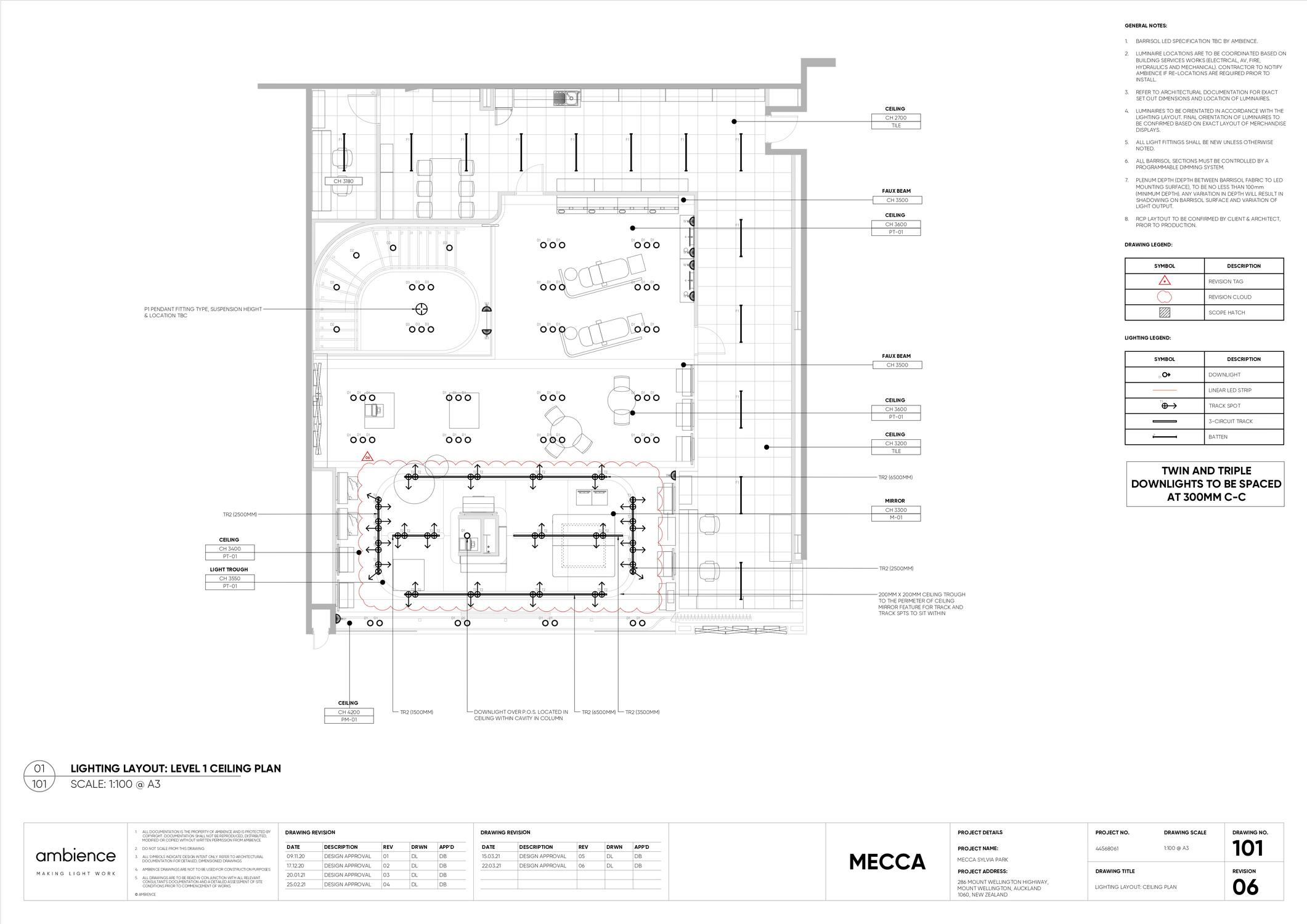
- Created contrasting level 1 approach with custom mirror ceiling feature, integrated curved track lighting, and downlights optimised for fragrance display.
- Produced comprehensive lighting plans, specifications, and technical documentation.
Outcome: Delivered sophisticated dual-level lighting solution that successfully balanced MECCA's luxury aesthetic with functional retail needs. Ground floor achieved shadowless, even illumination essential for cosmetic testing whilst meeting strict energy regulations. Level 1 accent lighting created focused ambience enhancing the fragrance department's premium appeal. The project set new standards for MECCA's large-format retail environments.








